IMPERIA GARDEN là Tổ hợp văn phòng, nhà ở cao cấp kết hợp dịch vụ thương mại được đầu tư xây dựng trên khu đất 4,2ha tại số 203 Nguyễn Huy Tưởng, Thanh Xuân, Hà Nội . Do công ty Cổ Phần HBI làm chủ đầu tư ...
1. Thông tin căn hộ số 14 ( Tầng 8 - 29 ) - Imperia Garden
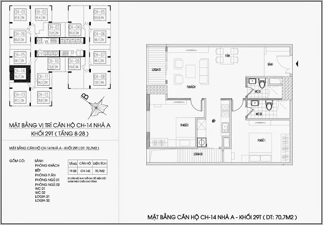
1. Thông tin căn hộ số 14 ( Tầng 8 - 29 ) - Imperia Garden
( Căn hộ bên tòa 35 tầng sẽ có hướng ngược lại)
Diện tích: 70,7 m2
Số PN: 2
Số WC: 2
Hướng ban công: Tây Bắc
Hướng cửa: Đông Nam

2. Thông tin căn hộ số 14 ( Tầng 3 - 7 ) - Imperia Garden
( Căn hộ bên tòa 35 tầng sẽ có hướng ngược lại)
Diện tích: 70,6 m2
Số PN: 2
Số WC: 2
Hướng ban công: Tây Bắc
Hướng cửa: Đông Nam

3. Thông tin căn hộ số 14 ( Tầng 2) - Imperia Garden
( Căn hộ bên tòa 35 tầng sẽ có hướng ngược lại)
Diện tích: 72,4 m2
Số PN: 2
Số WC: 2
Hướng ban công: Tây Bắc
Hướng cửa: Đông Nam
Dự án
Tags
Đăng kí
0 nhận xét:
Post a Comment